0
fr
GAUSSIN Nicolas Négociatrice
Télécharger la fiche

Appartement 2 pièce(s) 53 m²

Versailles (78000)
349 000 € Référence 84969239

A propos de ce bien

VENDU PAR L'AGENCE


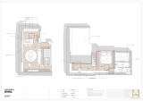
VERSAILLES - NOTRE DAME - PLACE DU MARCHE Dans un immeuble ancien disposant de parties communes en bon état général, bel appartement en DUPLEX (esprit LOFT) de 2/3P, 44m² (loi carrez) et 53.55m² (surface plancher) au 2ème et DERNIER étage donnant entièrement sur cour. Il se compose d'une entrée, d'un séjour cathédrale + une cuisine semi-ouverte (25.82m²), d'une chambre, d'un coin bureau, d'une grande salle de bain (douche et baignoire), et d'un wc séparé. Très CALME, chauffage + eau chaude individuelle électrique, situé en PLEIN CENTRE VILLE idéal pour un investissement locatif, habitation principale ou pied à terre. Prix de vente 349.000€ honoraires inclus, 339.000€ honoraires exclus, 10000€ charges acquéreur, 5 lots, 140€/mois charges copropriété, pas de procédure en cours. HESTIA Agency disponible même le dimanche pour acheter, louer ou vendre son bien immobilier. Estimation foncière et expertise gratuite remise sous 48H. Pour plus d'informations hestia-agency.fr

Caractéristiques de ce bien

  • Surface 53 m²
  • Chauffage autre : radiateur (electrique)
  • exposition Nord-Est
  • 2ème étage

Diagnostics énergétiques

DPE
GES
DPE en cours

Informations financières

Prix de vente 349 000 € Les honoraires d'agence seront intégralement à la charge du vendeur
Charges 140 €
Taxe foncière annuelle 796 €

Calcul des mensualités

* Champs obligatoires